Calgary Town Houses 4 Sale is a new master-planned community of detached homes on lots of 50’, 60’ and 100’ wide with depths from 120 to 200 feet.
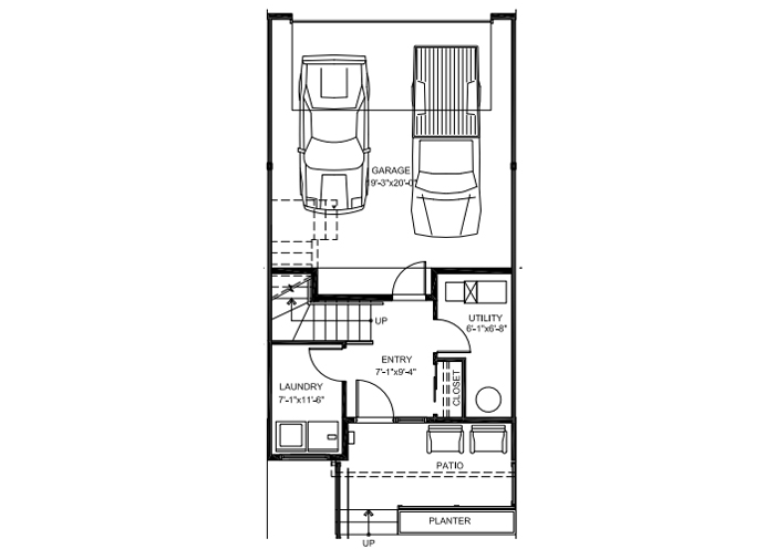
Inspired by practical design, The Summerside offers many great features in an open space that is perfect start for your family. The floorplan is compact, but spacious and includes everyday necessities that make this place comfortable and convenient. A large ‘L’ shaped kitchen overlooks the living room and nook area and includes stainless steel appliances, a large island and big window that overlooks the outdoor space from an elevated perspective. Upstairs has two bedrooms plus the master, which comes with its own ensuite bathroom and good size walk-in closet. The lower floor includes a spacious patio, while the main floor features a large balcony. This space truly defines practical living specifically designed as a great starting point for your family.
Conveniently located in the southwestern section of Airdrie, Bayview is one of the city’s newest suburban communities that has many great features, amenities and housing options for all types of families. This community is budding with potential and is home to one of the most idyllic features, the Canal. This waterway runs through the area where residents can access walkways, paths, parks and playgrounds. This scenic landscape is the perfect backdrop for all types of families, looking to escape the hustle and bustle of the city.
Airdrie, one of Canada’s fastest growing cities has become much busier since the early 21st century. Bayview’s proximity to accessible transport routes, close-by amenities and other features make this neighbourhood one of the most sought after communities in Airdrie. Live close to the bay and enjoy all that Airdrie has to offer. Only minutes away from everything,
yet peaceful serenity can be felt all around. Bayview would be the perfect place for you!